
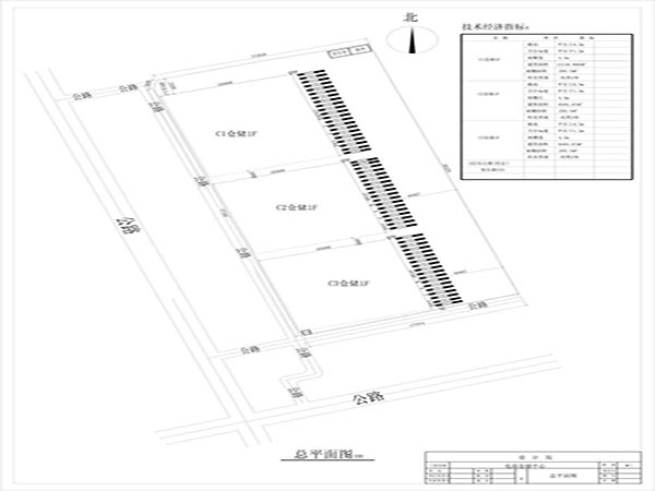
该库房位于天津市武清区距离北京市东五环化工桥60公里,距离京津高速2公里里。103国道东侧。地理位置绝佳,库区布局合理,证件齐全,于今年10月份完工投入使用,现诚意招商!!!具体价格面议。
该库房为国际标准高台库。檐高11米,(台高1.2米),证件手续齐全,建筑消防标准丙二类!分三个库区,全长度400米,宽度110米。装卸平台4米宽,雨棚4.5米宽。配备400米长,50米宽停车场周转区域,方便货物装卸,车辆停放!库区另配备办公、宿舍楼。
50 亩
3000 亩
5 亩
0 亩
0 亩
15 亩
40 亩
10 亩
360 平米
10000 平米